

今年度の審査会は3月2日に行われ、対象作品は全42点であった。審査は午後からの発表会終了後、常勤教員及び設計担当の非常勤教員の投票により行った。午後5時30分より9階製図室で常勤の教員全員により選考をおこなった。まず、投票結果が報告され、投票数4票以上の作品が第1次の選考対象となった。これらの作品については講評対象作品とすることになった。次に、設計賞及び奨励賞対象作品を得票数の多いものから5点選出した。上記以外に選考対象に加えるべき作品があるかどうかについて検討したが、該当無しであった。次に、各賞の対象となった作品について、内容、表現、完成度の観点から意見交換により審査した。特に上位2作品の優劣が議論となった。設計賞についてはこの2作品に関して再度審査員全員の挙手により投票を行い、設計内容、図面表現において完成度が高いと判断した1作品を選出し、それ以外の作品4点を奨励賞とすることに決定した。結果は以下の通りである。
【卒業設計賞】
宿利 隆:プラットホームから見えるもの ?下関駅におけるケーススタディ
【卒業設計奨励賞】
倉田 遥:STEPS
古賀 茉季:裏御堂筋
山本 和樹:VaMP -レンガ倉庫の保存・再生・活用-
山本 愛:中崎家
【総評】
卒業設計は工学部の中でも建築を専攻する学科だけで実施される卒業要件である。これは海外の大学でも同様で、国によってはディプロマの結果によって建築家資格が与えられる場合もある。その意味でも卒業設計は設計者としての資質が問われるものと認識すべきである。
今年度の全般的な印象としては、昨年度と比較して、現実的な問題をテーマに取り上げている作品が多く、堅実な仕上がりになっているものが多い一方、その作品が持つインパクトにやや欠ける印象を受ける。卒業設計では自ら設定した課題に対して、具体的に建築として解決する必要があり、その際互いに矛盾する様々な命題に決着をつけ、複数のなかから唯一の解を見いだしたうえで、その内容を提出図面に表現することが求められる。今回提出された作品は全体として、図面枚数の少なさもさることながら、設計内容や図面表現に物足りなさを感じる一方で、出品された模型に関しては、意欲的なものが多く、昨年に比べて格段に良くなっていると感じる。ただし模型が形態的、空間的に素晴らしいできであるにもかかわらず、それが建築として具体化されているものは少なく、設計が完成していないために、図面として提示できていない作品が目に付くのはどうしてであろうか。このことは自らの考えを的確に図として表現し得る設計技量の問題と捉えることもできよう。今後建築設計を志すものであれば、少なくとも設計の基本として設計図面を作成する行為から逃避してはならない。今後一層の研鑽を期待する。
![]() |
![]() |
![]() |
![]() |
![]() |
![]() |
![]() |
|
![]() |
![]() |
【講評】
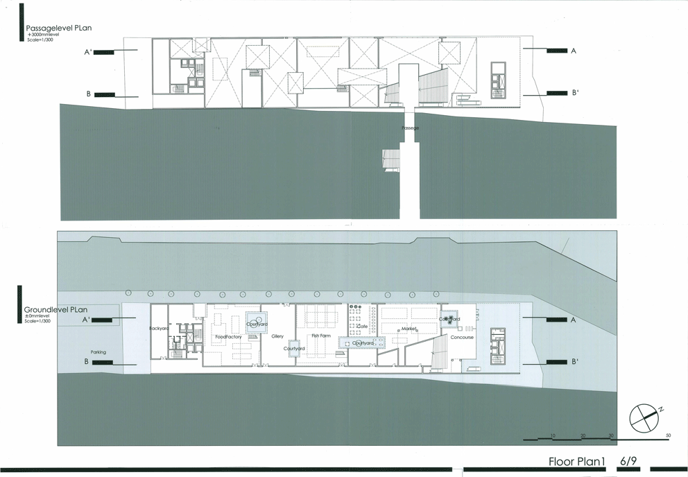
下関駅とその周辺を対象に、既存のプログラムの組み替えと新たなプログラムを導入し、駅とその周辺を一体的に整備した作品である。現状の下関駅は、近接する漁港・市場などの港湾施設と駅前の商業施設や雑居ビルとを分断し、都市のアイデンティティを見えなくしている。それの解決策として、ボリュームを周辺ビルに合わせて分割し、それぞれのボリュームを持ち上げ高さを揃えてつなぎ合わせる方法を提案した。それにより、駅により分断されていた地上レベルでは新たな連続した公共空間ができ、上部では新たな活動を生み出している。駅により分断された街に対し、ボリュームを上に持ち上げ、高さを揃えることで連続させている点や景観を統一している点、下関駅の立地特性を活かしたダイナミックな建築物である点が評価される。しかし、2本のメガフレームにより上部のボリュームを支える構造が成立するか否かのさらなる検討が必要である。
![]() |
![]() |
![]() |
![]() |
![]() |
【講評】
当該計画は、かつての高度成長を支えてきた大阪の中小工場を再び甦らせるインキュベータの提案である。敷地は近年の物流革命と産業構造の変化によって、多くの造船所や工場が廃業を余儀なくされ、遊休地化がすすむ大阪内港エリア(旧大阪造船所付近)にあり、すでに廃線になった大阪臨港線の線路敷跡地を利用して、その両側にある様々な種類の中小の工場群をひとつに統合させようとするものである。既存の工場や倉庫をそのまま残し、当該施設を連結させることで、大企業に匹敵する機能を実現させるというコンセプトはきわめて秀逸である。また、緻密な現地調査をもとに、大阪が抱えている社会的、経済的問題を的確に捉え、建築として見事に解決した画期的な提案であると考える。また、かな型を連想させる鍵型状の構造フレームが不規則に連続するデザインは大層美しく、システムとしても良く考えられている点、高く評価する。ただ作者が意図する設計内容がまだ十分に表現しきれていない点が大変惜しまれる。そこでのアクティビティを具体的な建築設計のリアリティの中で解決し、設計図面として適切に表現することで飛躍的に良くなるものと考える。
![]() |
![]() |
![]() |
![]() |
![]() |
![]() |
![]() |
|
![]() |
【講評】
本町-心斎橋間の御堂筋の地下を掘った作品である。この間の御堂筋の特徴の対比として、地下に都市空間を造り、都市や建物の構造を見上げる大胆な提案を行った。発想のユニークさや手描きの絵の迫力が高く評価される。また地上の活況に合わせて地下への入り口を設けるなど地上との対比で地下空間の用途を検討した点が評価される。しかし、提案は構想の段階で終わっており、建築設計ではそこからさらに踏み込んだ提案が必要である。具体的に建築として平面・断面・構造などがどのようになっているのかがわからない点、建築の図面として完成されていない点が挙げられる。
![]() |
![]() |
![]() |
![]() |
![]() |
【講評】
大阪築港南側の海岸通エリアは大阪市の国際芸術家村構想の一環として、住友倉庫による私設ギャラリーCASOが運営を開始し、隣接するレンガ倉庫ではNPO法人アーツアポリアが様々なイベントを企画してきた。当該計画はこのCASOエリアと北側にある海遊館やサントリーミュージアムを海岸沿いに繋ぐ中間地点に残るやや小規模のレンガ倉庫を文化施設として再生することで、築港の南北に点在する施設群の連携を目指している。計画の施設は既存のレンガ倉庫にソリッドな構造体を重ね合わせることでできる不安定な空間がこの作品の基調になっている。またその構造体は敷地のコンテキストに合わせて微妙に切断されており、その隙間から、垣間見られるレンガ倉庫の各部位は、かつてそこに存在していた多くの倉庫群の記憶を彷彿とさせる。その意味でも、取り扱いが難しい歴史的な建造物のコンバージョン手法の提案としてよくできていると判断する。またパネルや模型のプレゼンテーションに見られる透明でビビッドな表現は美しく、高く評価するが、肝心の建築設計にかかわる図面表現が不十分である点が非常に惜しまれる。今後の研鑽を期待したい。
![]() |
![]() |
![]() |
![]() |
![]() |
![]() |
![]() |
【講評】
戦災を免れたため昭和初期の町家が残り、そのレトロな雰囲気が若者に人気の中崎町で、多世代にわたる住人たちが共に支え合いながら生きる集合住宅と高齢者デイサービス、託児所、図書館、ギャラリーなどの様々なサービス施設からなる複合建築の提案である。いくつものパブリックスペースを介して住戸と施設が緩やかに接続し、プライベートからパブリックに至る空間のヒエラルキーを自然に創出している点や、全体をほぼ2階建てとして、既存の街のスケールを壊すことなく変化に富んだ空間を生み出している点などは、作者の空間認識に対する能力を感じさせる。独立性の高い住戸は、スケルトン・インフィルのシステムにより生活形態の変化への対応が盛り込まれていたり、街との関連性を意識した敷地内の軸など、様々なレベルで配慮が行き届いている。この種の提案は卒業設計においては比較的よく見られるものであるが、この作品は作者の力量はもちろん、卒業設計に取り組む真摯な姿勢が図面から伝わってくる優れた作品として評価できる。ただ、中崎町の地域性に対する説明、すなわち中崎町でなければならない理由や、ここで発生するであろう住人や地域のアクティビティに関する表現がやや物足りない点が残念である。そうした点が十分表現されていれば、さらに評価は高まったであろう。


































